本拿比的开发商正在热火朝天的建造更多的公寓,可是其单位面积被大家称为 "荒谬 "和 "不适合居住"。
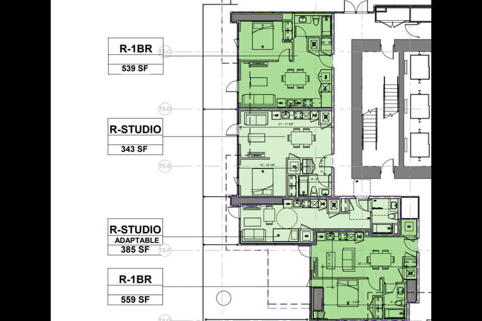
位于4750 Kingsway的Concord Metrotown开发项目将向市场提供188个非市场租赁单位,其中58个非市场单间单位的面积将在323至346平方英尺之间。
这个面积只是比日常的校车大一点而已。


而且这也比该开发项目的市场单间小了75平方英尺,Concord Metrotown面向市场出售的分层单间的面积在399到528平方英尺之间,比平均市场租赁单间的505平方英尺起价小了182平方英尺。
Concord Metrotown分层公寓的单间单位的最小尺寸为398.28平方英尺(37平方米),出租单位的最小尺寸为322.93平方英尺(30平方米)。
Pietro Calendino议员今年早些时候在6月1日的规划和发展委员会上要求工作人员报告分层和租房的最低单位尺寸。
"一个330(平方英尺)的单身单位并不是一个宜居的地方。一个450(平方英尺)的一室一厅是一个非常小的空间,"他在6月1日的会议上说。
"显然,我们关注的是可负担性,但可负担性也应伴随着一定程度的宜居性。"
市长Mike Hurley说。"在我看来,这是个可笑的尺寸,可人们必须住在里面。......现在是时候重新审视这个问题,确保它不再发生。"
规划主任告诉议会,当开发项目准备好进行公开听证时,"平面图已经基本确定"。
"我认为对于一个人来说,它(323平方英尺的单位)可能还可以。但对于一对夫妇来说,这就非常小了,或者我认为对于那些可能有一些行动问题的老年人来说,他们需要更多的空间来移动。对于年轻人或学生来说,可能需要这些小单元,因为他们主要是用来睡觉的。"
Concord Metrotown开发项目有四个塔楼,共2,186个单元,将于11月22日星期二下午5点举行公听会。
版权归Vansky所有,转载请标注链接。