温哥华生意买卖 地产经纪 赵信德 Frank Chen 女神的衣橱 vanskywechat

The Colonnade —— 全新装修一卧室加书房公寓6月免租!

(Vansky Copyright)
更新时间: 2025-06-21, 19:04
联系人 联系人: Jimmy
邮箱 邮箱   : pm@landaglobal.com
微信 微信   :
电话 电话   : 7786814159

[来电请说Vansky上看到]

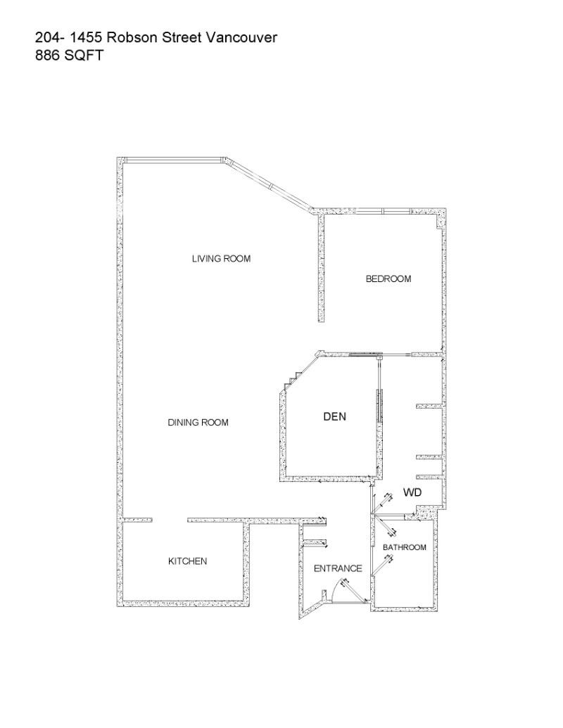
地址 地址   : 1455 Robson Street  

250523130343_4790071ba05fd84bc86021e15ca5f4e.jpg
250612095844_Living Dinning.jpg
250612095845_Bedroom.jpg
250612095845_WIC.jpg
250612095844_Kitchen.jpg
250612095844_Living Dining 2.jpg
250523130343_6ddc8e97d6eccaaf7771632e8bcadb9.jpg

-[C-[_o]py*.R[__-igh.-.t©)19-(99(-2-018van-sk+?]+?y_-.*com

出租住宅
住宅类型:公寓;房间类型:中间楼层;
房间情况:1睡房;1浴室;1客厅;全功能厨房;1饭厅;
停车:车位;
设备设施:洗衣,干衣,一体炉具,烤箱,冰箱,微波炉,地板;
租金包含:水,暖;
出租方式:整租;
租客条件:无烟,无宠;
语言偏好:普通话,英语;
可用时间:2025-06-15;
租金或价格:2800左右;
 
详情描述

The Colonnade —— 全新装修一卧室加书房公寓出租!

 地址:204-1455 Robson Street V6G 1C1
户型:一卧室 + 书房(全新装修)- 不带家具 - 6月15日起入住
租金:$2800 - 六月免租
面积:886 平方英尺
卧室:1.5(1卧室 + 书房)
卫生间:1
家具:不带家具
停车位:1个地下停车位
水电:不包含
宠物:不允许携带宠物

房源描述:

明亮宽敞的 一卧室加书房 公寓,全新翻新,位于温哥华市中心著名的 Robson Street 上。地理位置优越,楼下就是大味,聚,北京饭店等餐厅。Safeway, Whole Food、Robson Public Market等超市,以及Denman Street、Stanley Park、Bayshore Marina、 English Bay 和市中心皆近在咫尺,生活极为便利。

租赁信息:

    • 最短租期:12个月
    • 需要购买租客保险
    • 搬入需支付搬家费:$200
  • 需提供推荐信和信用检查



主要特色:

  • 一卧室加书房单位
  • 宽敞的客厅,适合放松与娱乐
  • 新升级的地板与厨房家电
  • 带阳台,可欣赏城市景观,呼吸新鲜空气
  • 大型步入式衣柜,提供充足储物空间
  • 室内洗衣机和烘干机
  • 包含一个地下停车位
  • 可另租储物柜


联系我时请说明是在Vansky上看到的,谢谢!

 

防骗:请勿在未见面看房核实身份下,网上支付押金。
用图片内的文字描述看管房子,宠物免租金,都有诈骗嫌疑

Vansky Copyright

分享到微信: 分享到微信

Jimmy

7786814159

电话

safari_pop_logo
 
App 下载