温哥华生意买卖 地产经纪 赵信德 Frank Chen 女神的衣橱 vanskywechat

Metrotown中心区三年新高级公寓二室一厅二卫出租

(Vansky Copyright)
发布时间: 2024-09-27, 12:38
联系人 联系人: 李先生
邮箱 邮箱   : 38331866@qq.com
微信 微信   :
电话 电话   : 7788891758

[来电请说Vansky上看到]

地址 地址   : 6700 Dunblane Ave  

240927123705_公寓外景.jpeg
240927123712_IMG20220807110207.jpg
240927123719_97D4Pkl_eE.0ac14f06d144f54bn_w850_4be3.jpg
240927123730_公寓饭厅.jpg
240927123737_45B4Pkms3L.eb52e79935fce346M_w850_074e.jpg
240927123742_45K4Pknez4.cf9ce7c0bea39321d_w850_fb56.jpg
240927123751_49F4PkqHWm.4099922a3a6e5b70s_w850_9890.jpg
240927123757_公寓主卧卫生间.jpeg

?Cop]yRigh?t?©]]_+1999[+.-2-01.++?8va)-ns?.+)ky)..__.c*(om

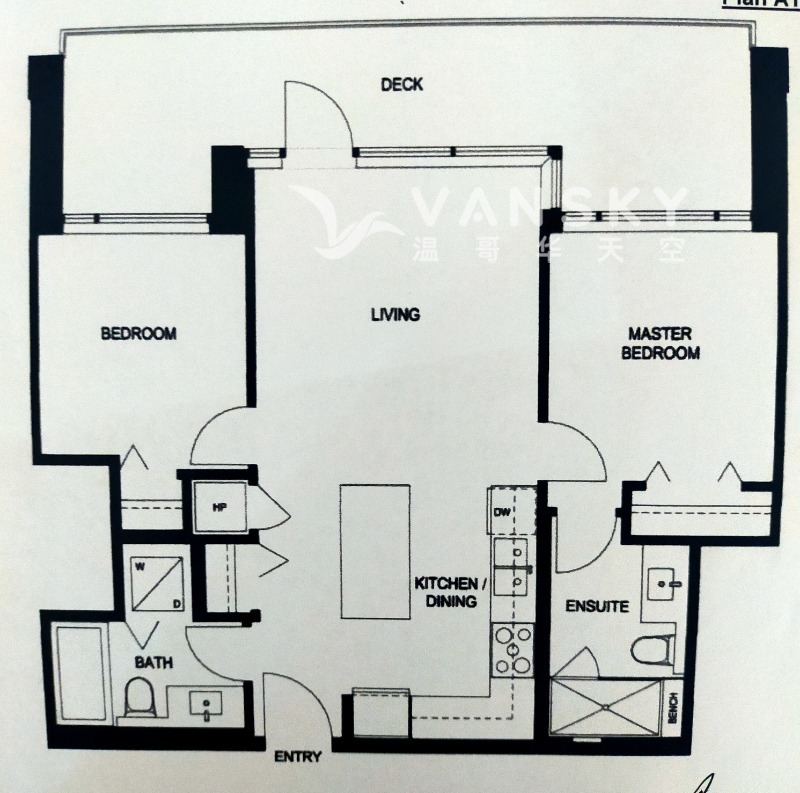
出租住宅
住宅类型:公寓;房间类型:中间楼层;
房间情况:2睡房;2浴室;1客厅;全功能厨房;1饭厅;
停车:车位;
设备设施:洗衣,干衣,一体炉具,烤箱,冰箱,微波炉,地板,地毯;
租金包含:水,煤,暖;
出租方式:整租;
是否独立出入:是;
租客条件:无烟,无宠;
语言偏好:普通话;
可用时间:2024-10-10;
租金或价格:3300左右;
 
详情描述

Metrotown中心区三年新高级公寓二室一厅二卫出租,大阳台,靠近Bonsor社区活动中心和Metrotown购物中心。西面靠近Metrotown天车站和巴士总站,东面靠近Royal Oak天车站,步行均不超过十分钟。交通便捷,购物方便。大厦内有健身房,羽毛球(篮球)场,商务中心等等,房间有中央冷暖空调,燃气炉灶,冰箱,微波炉,烤箱,洗碗机,洗衣干衣机,衣橱等等,带一个固定停车位和一个储物间。适合小家庭,单身人士,留学生,陪读父母租用。近日可以入住,半年起租。 有意请在晚上11点前来电,或者短信联系,预约看房

有意请联系:(778) 889-1758


联系我时请说明是在Vansky上看到的,谢谢!

 

防骗:请勿在未见面看房核实身份下,网上支付押金。
用图片内的文字描述看管房子,宠物免租金,都有诈骗嫌疑

Vansky Copyright

分享到微信: 分享到微信

李先生

7788891758

电话

safari_pop_logo
 
App 下载